info@architettopensato.it

Progetti

MILANO via Casoria, 50

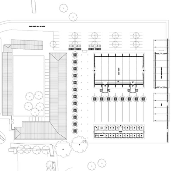
L'intervento si inserisce in un progetto più ampio di riqualificazione e sviluppo dell'attività di Ippoterapia che Anffas svolge da diversi anni in Cascina Biblioteca all'interno del Parco Lambro a Milano.

Il progetto elaborato dall'architetto Fiorentini, che prevedeva un importo complessivo di circa € 1.380.000, si è sviluppato partendo dal contesto esistente caratterizzato dalla Cascina Biblioteca, tipico edificio rurale risalente al 1500, con tipologia a corte aperta.

Le nuove strutture, costituite dalle scuderie, dal maneggio coperto, dal fienile e dal deposito per macchinari agricoli, si articolano a formare una “corte sportiva” speculare a quella originale, stabilendo attraverso i muri costruiti a nord, il nuovo confine con la campagna.

La scelta di materiali come il mattone faccia a vista, il legno lamellare e le coperture in cotto sono un chiaro riferimento ai materiali rurali tipici della pianura padana, utilizzati con tecnologie e sistemi contemporanei.

Le prestazioni relative al coordinamento della sicurezza hanno riguardato esclusivamente la realizzazione del deposito di via Casoria.